Hermann-Josef Ratering
Diplom Ingenieur
Architekt
 
 
 
 

Referenzen

Hier sehen Sie einige Objekte, die wir realisiert haben.

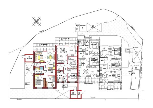
Reihenhausanlage (4 WE), barrierefreie Mietwohnungen


Wohnpark mit vier barrierefreien Eigentumswohnungen zur Vermietung. Das Gebäude wird nach dem KfW-Standard "Energieeffizienzhaus 55" errichtet. Jede Wohneinheit erhält ein eigenes Carport mit Geräteraum, sowie eine geschützte Terrasse mit kleinem Garten. Die Zugänge zu den Wohnungen sind auf alle vier Seiten verteilt. Zwei Wohnungen sind von der Nielandstraße erreichbar, die beiden weiteren Wohnungen über die Händelsstraße. Die Wohneinheiten haben jeweils drei Zimmer, Flur, Garderobe, Bad und Abstellraum mit circa 80 qm Wohnfläche netto.

Fertigstellung: Dezember 2011



 
» zurück zur Übersicht
N A V I G A T I O N